城泰枫华天成

案例户型 三居
装修风格 北欧
房屋面积 70-100㎡
所属区域 新建区

设计说明

业主需求:北欧设计理念:因生活而设计,因设计而美好。擅长风格:现代简约、新中式、简约美式、欧式。个人爱好:旅行、羽毛球、花。没有别墅的豪华 没有摩天楼的挺拔用暖暖的情意把四周的墙壁粉刷客厅挂上几幅装饰画卧室添几分温馨与淡雅露台摆放两张休闲椅泡上两杯淡淡的清茶一起看缓缓升起的朝阳一起看从地平线逝去的晚霞告别尘世的喧嚣和烦华享受一份久违的宁静 这就是家

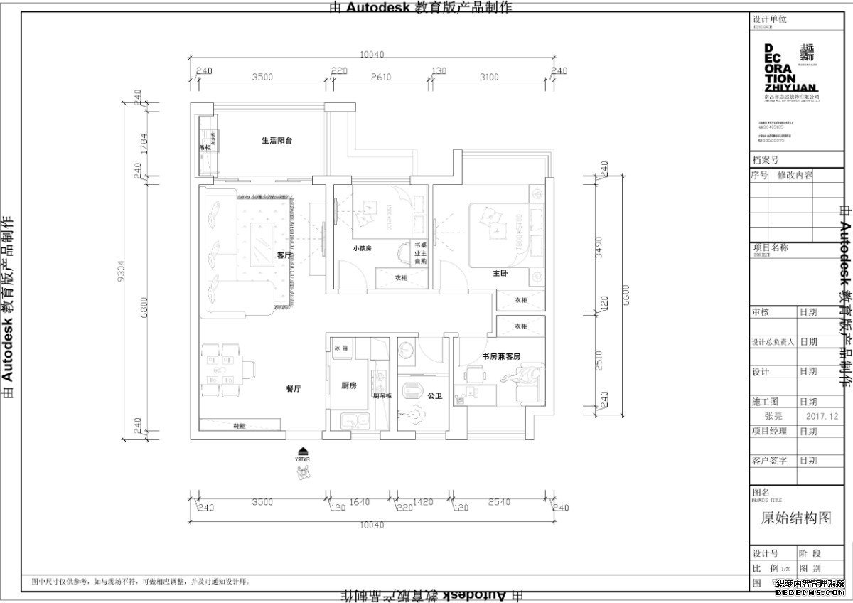
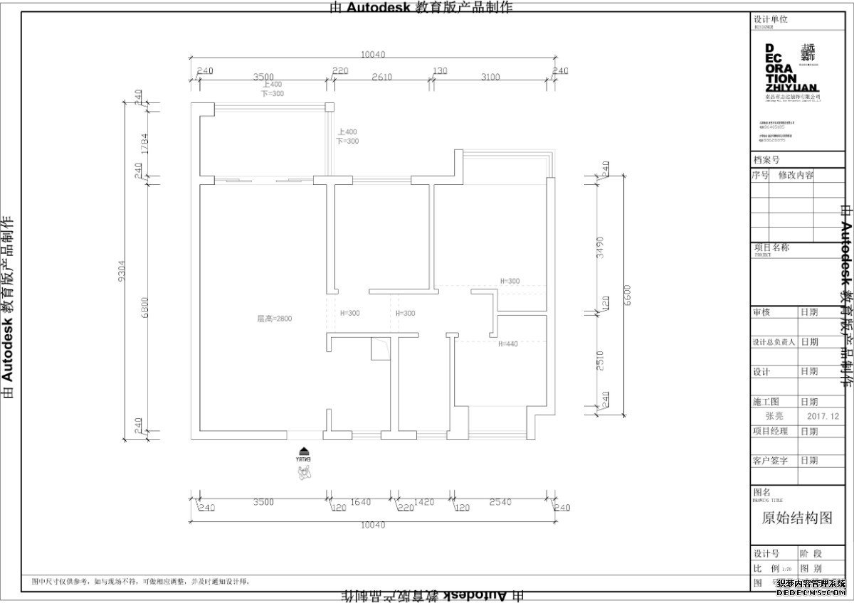
预算说明: 面积89  全包12500


暂无设计师