绿地悦城
设计说明
绿地悦城
已开工200户
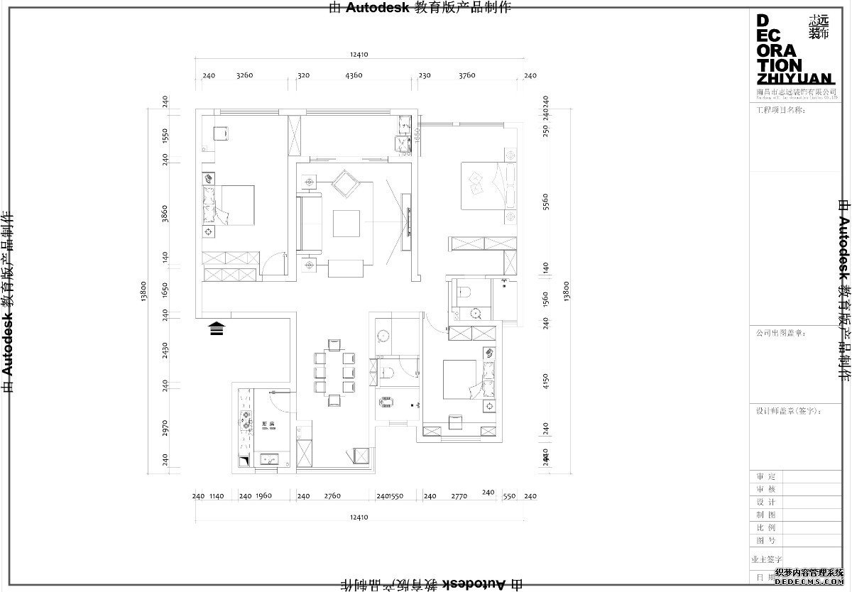
楼盘:绿地悦城
户型:三室两厅一厨两卫
面积:140m²
造价:全包35万
主案设计师:文俊
本案是绿地悦城140户型, 本案为三房两厅一厨两卫的结构,户型的设计上通常采用贯穿设计,通过通风采光的设计中,让行走动线更为通畅,从风格上来说除了保持传统风格上的不变因素以外,我们更多的是创新,在创新中采用木制的搭配,能更加体现一种人文的精神在里面






绿地悦城
已开工200户
楼盘:绿地悦城
户型:三室两厅一厨两卫
面积:140m²
造价:全包35万
主案设计师:文俊
本案是绿地悦城140户型, 本案为三房两厅一厨两卫的结构,户型的设计上通常采用贯穿设计,通过通风采光的设计中,让行走动线更为通畅,从风格上来说除了保持传统风格上的不变因素以外,我们更多的是创新,在创新中采用木制的搭配,能更加体现一种人文的精神在里面






已有 2000+ 位业主提交设计需求